Корзина
ОформитьТрансформатор тока ТТИ-30 100/5А 5ВА класс 0,5S МПИ08 IEK
Преимущества
- Медная луженая шина у трансформаторов ТТИ-А дает возможность подключать как медные, так и алюминиевые проводники.
- Корпус всех трансформаторов ТТИ выполнен из самозатухающего пластика.
- В комплект каждого трансформатора входит крышка, которой закрываются клеммы вторичной обмотки.
- Также трансформаторы ТТИ-А комплектуются винтами и гайками для крепления проводников. Трансформаторы ТТИ-30/ТТИ-125 комплектуются скобой для крепления шины в окне трансформатора.
- Все трансформаторы ТТИ проходят первичную поверку.
- Межповерочный интервал 8 лет.
- Факт прохождения поверки фиксируется простановкой оттиска поверительного клейма на корпусе ТТИ и в паспорте изделия.
Документация
Сертификаты
Паспорта и РЭ
Дополнительные изображения
Класс: Трансформатор тока (ID: EC002048)
| ID | Описание | Значение | Ед. изм. |
|---|---|---|---|
| EF007405 | Первичный номин ток | 100 | А |
| EF007471 | Вторичный номин ток | 5 | А |
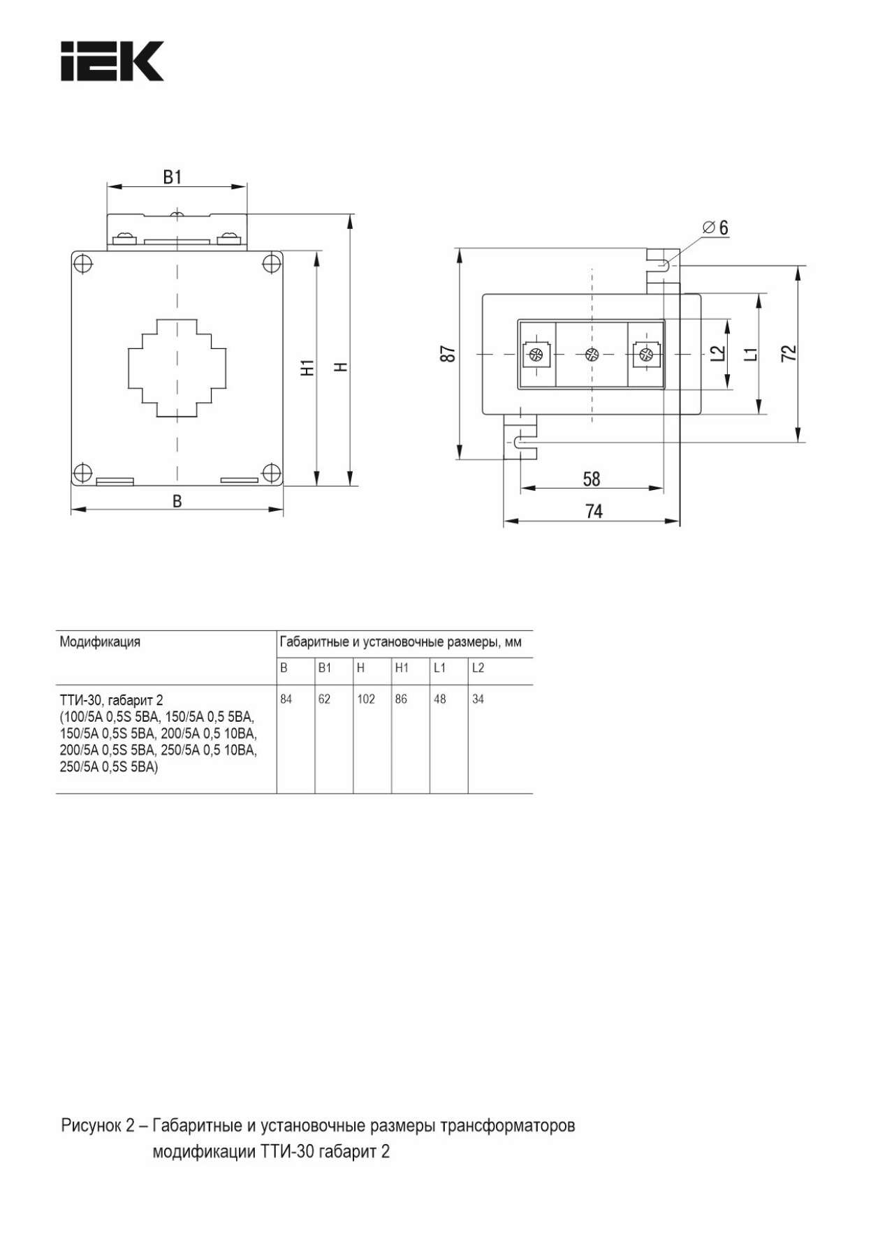
| EF000016 | Макс диаметр кабеля | 28 | мм |
| EF007469 | Вторичное подключение | Винтовое соединение | |
| EF007380 | С медной шиной | Нет | |
| EF005152 | Ширина проёма | 30,5; 24; 18; 10 | мм |
| EF005154 | Высота проема | 30,5; 24; 18; 10 | мм |
| EF000002 | Номин напряжение | 660 | В |
| EF000010 | Модель или исполнение | Преобразователь тока с первичной обмоткой | |
| EF007470 | Номин вторичная полная мощность | 5 | ВА |
| EF003706 | Калиброванный | Да | |
| EF007511 | Фактор ограничения перенапряжения | FS 5 | |
| EF005474 | Степень защиты - IP | IP20 | |
| EF001359 | Рабочее положение | Любое | |
| EF008186 | С защитой от прикосновения | Да | |
| IEK_F000004 | Климатическое исполнение | УХЛ3 | |
| EF002386 | Температура эксплуатации | -45...50 | °C |
| EF002963 | Номин частота | 50 | Гц |
| EF007462 | Установка на защёлках | Нет | |
| EF005153 | Диаметр проёма | 28 | мм |
| EF006947 | Количество первичных входов | 1 | |
| IEK_F001045 | Номин коэф безоп втор обмотки | 5 | Кбном |
| IEK_F000063 | Наибольшее раб напряжение | 0,72 | кВ |
| EF008842 | Класс точности | 0,5S |
Характеристики
- class Трансформатор тока
- Вторичное подключение Винтовое соединение
- Вторичный номин ток 5
- Высота проема 30,5; 24; 18; 10
- Диаметр проёма 28
- Калиброванный Да
- Класс точности 0,5S,0,5S
- Климатическое исполнение УХЛ3
- Количество первичных входов 1
- Макс диаметр кабеля 28
- Модель или исполнение Преобразователь тока с первичной обмоткой
- Наибольшее раб напряжение 0,72
- Номин вторичная полная мощность 5
- Номин коэф безоп втор обмотки 5
- Номин напряжение 660
- Номин частота 50
- Первичный номин ток 100
- Рабочее положение Любое
- С защитой от прикосновения Да
- С медной шиной Нет
- Степень защиты - IP IP20
- Температура эксплуатации -45...50
- Установка на защёлках Нет
- Фактор ограничения перенапряжения FS 5
- Ширина проёма 30,5; 24; 18; 10
Отзывы (0)
Войдите или зарегистрируйтесь чтобы оставить отзыв
Спецпредложение для партнеров: Скидка от 10% до 30%
Запрос проектных цен на комплектацию строительных объектов и щитового оборудования.
У вас есть готовая спецификация, смета или перечень оборудования для крупного объекта?
Получите индивидуальные условия и оптимизируйте бюджет строительства с выгодой до 30% от розничного прайса.
Почему выгодно работать с нами по проекту
Максимальная скидка
Мы защищаем проект у производителя и даем вам лучшие условия (от 10% до 30% в зависимости от объема).
Все бренды в одном счете
Комплектуем объект «под ключ»: IEK, ARMAT, GENERICA, LEDEL, FEREKS, ITK и другие линейки.
Экспертиза
Наши инженеры бесплатно проверят спецификацию на ошибки и предложат оптимальные замены или аналоги.
Логистика
Оперативная комплектация и отгрузка продукции по всей России. Участие в тендерах.
Основные линейки оборудования для проектов
Мы предлагаем полный спектр продукции IEK GROUP и партнерских брендов. Переходите в разделы для ознакомления с ассортиментом:
Как получить проектную скидку?
Отправьте спецификацию или проект на почту info@iek-snab.ru
Напишите название объекта и плановые сроки закупки для защиты проекта.
Мы вышлем коммерческое предложение с проектными ценами.
Остались вопросы?
Наши менеджеры готовы проконсультировать вас прямо сейчас.
Адрес: 117449, г. Москва, ул. Карьер, 2А строение 1, офис 307
Специализированные поставки для организаций: оплата только по безналу с НДС. Отгружаем продукцию с доставкой до вашего адреса в любом регионе РФ


