Корзина
ОформитьРаспределительное устройство РУСп-6х16/3+2х16/5 У1 IP44 IEK
YKM80-323-54
Распределительное устройство для строительных площадок (РУСП) предназначено для безопасного распределения энергии и для подключения различных электроприемников.
Область применения не ограничивается строительными площадками, данное устройство может применяться и в садовых товариществах, и в гаражных кооперативах, и во многих других ситуациях, где необходимо безопасное использование силового электрооборудования.



Преимущества
- Повышенная антикоррозийная стойкость.
- Высококачественное наружное покрытие.
- Малогабаритная конструкция.
- Высокая технологичность и простота использования.
- Высокий уровень электробезопасности.
- Эстетичный внешний вид.
- Сертификат соответствия.
- Возможность крепления на стене.
- Индикация наличия напряжения.
Особенности конструкции

Съемные ножки в комплекте поставки

Крыша в комплекте поставки – надежная защита (У1)

Индикация наличия напряжения

Съемная ручка обеспечивает удобство при эксплуатации и транспортировке

Розетки для подключения различного промышленного оборудования напряжением 220 и 380 В.
Документация
Сертификаты
Паспорта и РЭ
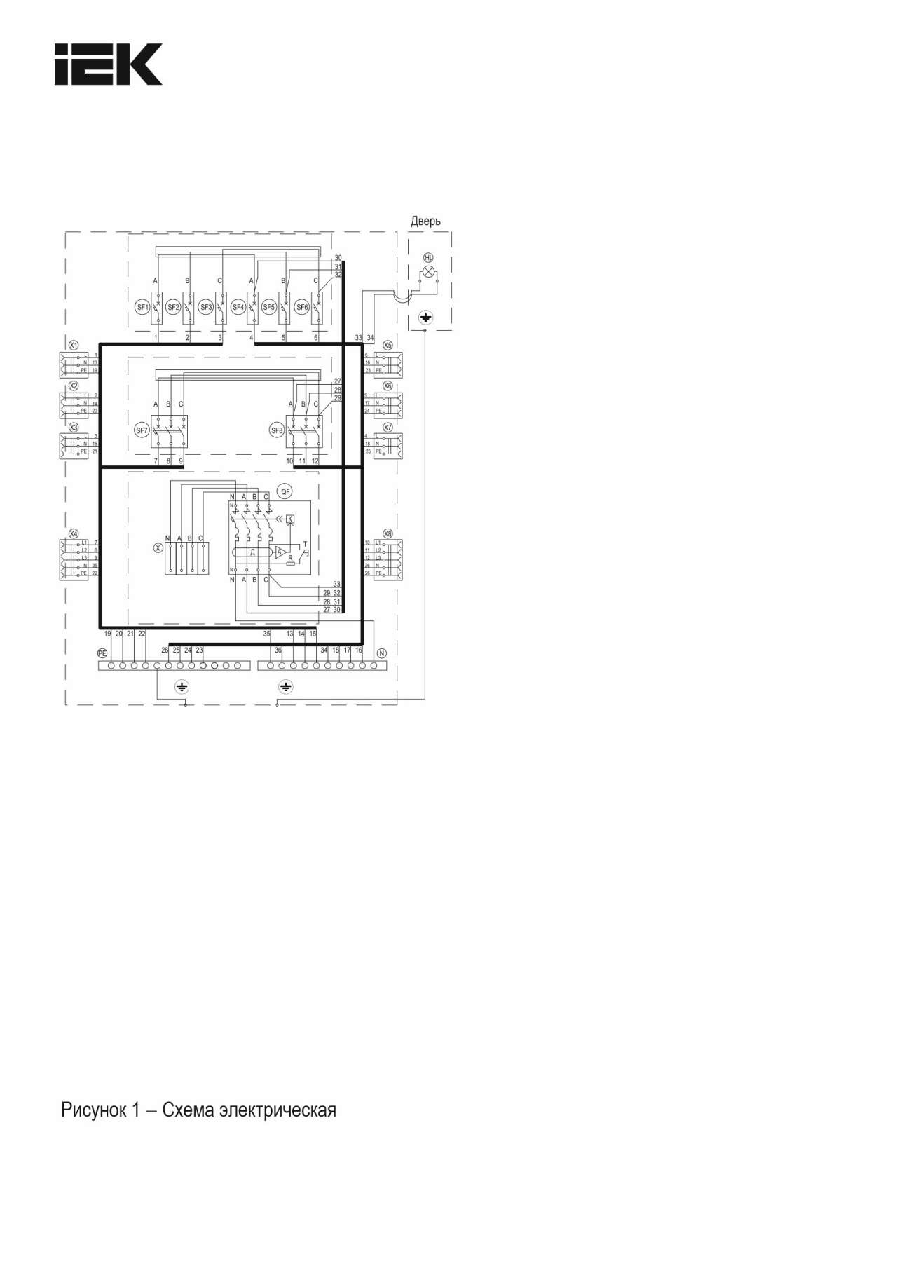
Схемы подключения
Информационные материалы
Дополнительные изображения
Характеристики
- class Распределительное устройство для строительных площадок (РУСП)
- Высота 637
- Гарантийный срок, Лет 2
- Главный выключатель Дифференциальный автоматический выключатель
- Глубина 160
- Климатическое исполнение У1
- Кол-во СЕЕ розеток 16 А или 400 В или 5Р 8
- Кол-во штепсель розеток с защ контактом 8
- Конфигурация системы TN-S
- Модель или исполнение Переносной конечный распределительный щит
- Номин импульсное выдерживаемое напряжение 2,5
- Номин ток 50
- Номин частота 50
- Номинальное напряжение 230/400 В
- Подключаемая нагрузка-потребляемая мощность -
- Прочность при коротких замыканиях 4,5
- Степень защиты - IP IP44
- Ширина 340
Отзывы (0)
Войдите или зарегистрируйтесь чтобы оставить отзыв
Подробнее...